Hospital Maria Pia

Eng. Claudino Carneiro Sousa Faro - Luanda

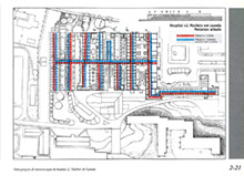
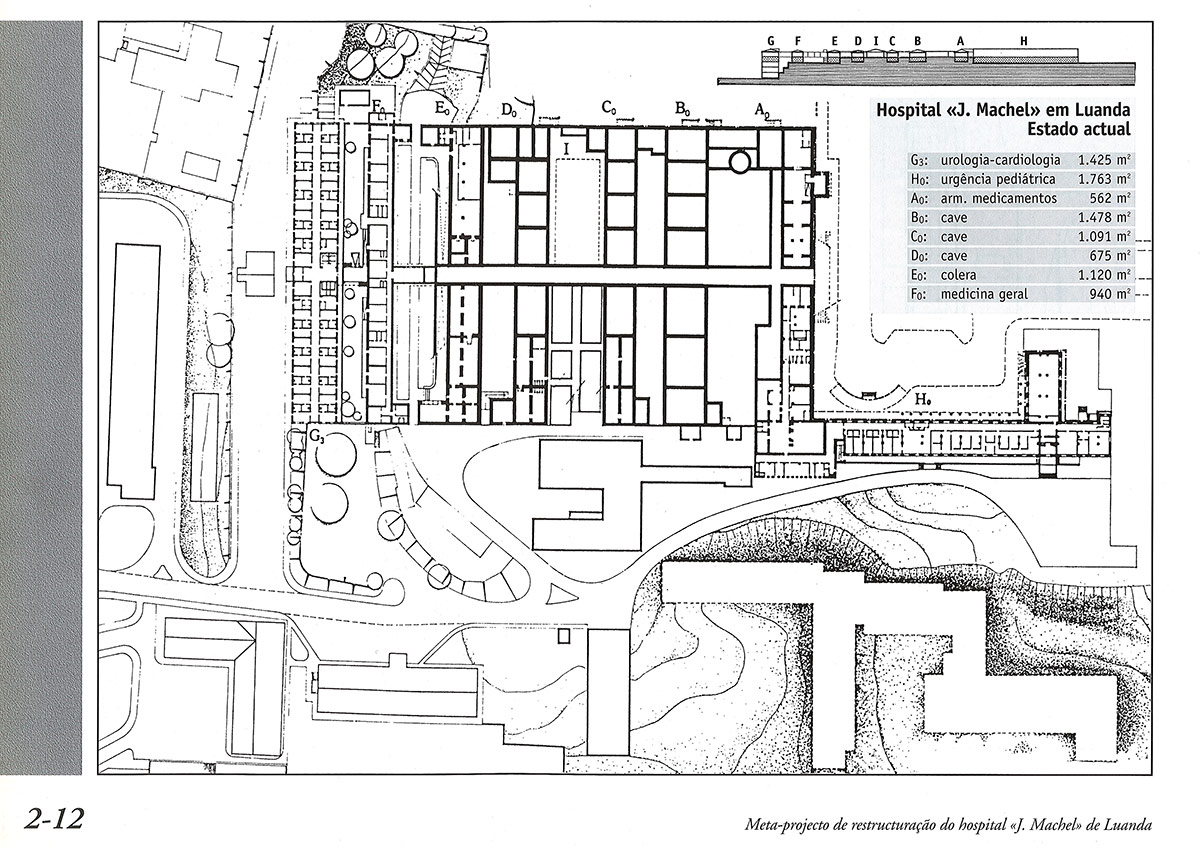
ELEMENTOS GRÁFICOS
Work 01
Work 01
Work 01
Work 01
Work 01
Work 01
Work 01
Work 01
Work 01
ELEMENTOS ICONOGRÁFICOS
Work 01
Work 01
Work 01
Work 01
Work 01
Work 01
Work 01
Work 01
Work 01
Work 01
Work 01
Work 01
Work 01
Work 01
Work 01
Work 01
Work 01
Work 01
Work 01
Work 01
Work 01
Work 01
Work 01
ToTop