Hospital Maria Pia

Eng. Claudino Carneiro Sousa Faro - Luanda

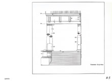
ELEMENTOS GRÁFICOS
Work 01
Work 01
Work 01
Work 01
Work 01
Work 01
Work 01
Work 01
Work 01
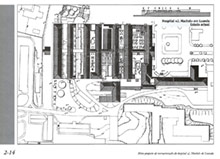
ELEMENTOS ICONOGRÁFICOS
Work 01
Work 01
Work 01
Work 01
Work 01
Work 01
Work 01
Work 01
Work 01
Work 01
Work 01
Work 01
Work 01
Work 01
Work 01
Work 01
Work 01
Work 01
Work 01
Work 01
Work 01
Work 01
Work 01
ToTop